CASA ADOSADA EN BADALONA
Badalona (La Morera) - REF. 3450

173 m2

35 m2

4

3

2
venta: 555.000 €
Descripción
MONMARESME presenta esta EXCLUSIVA vivienda en la zona alta de la Morera, recién reformada con una reforma integral, lista para entrar a vivir.

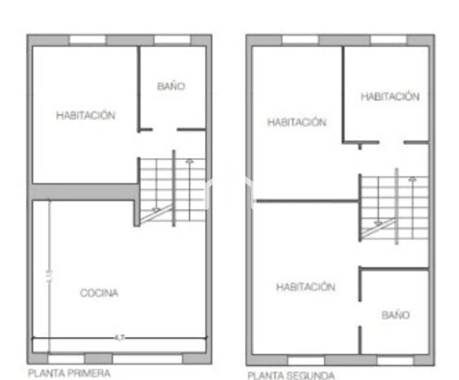
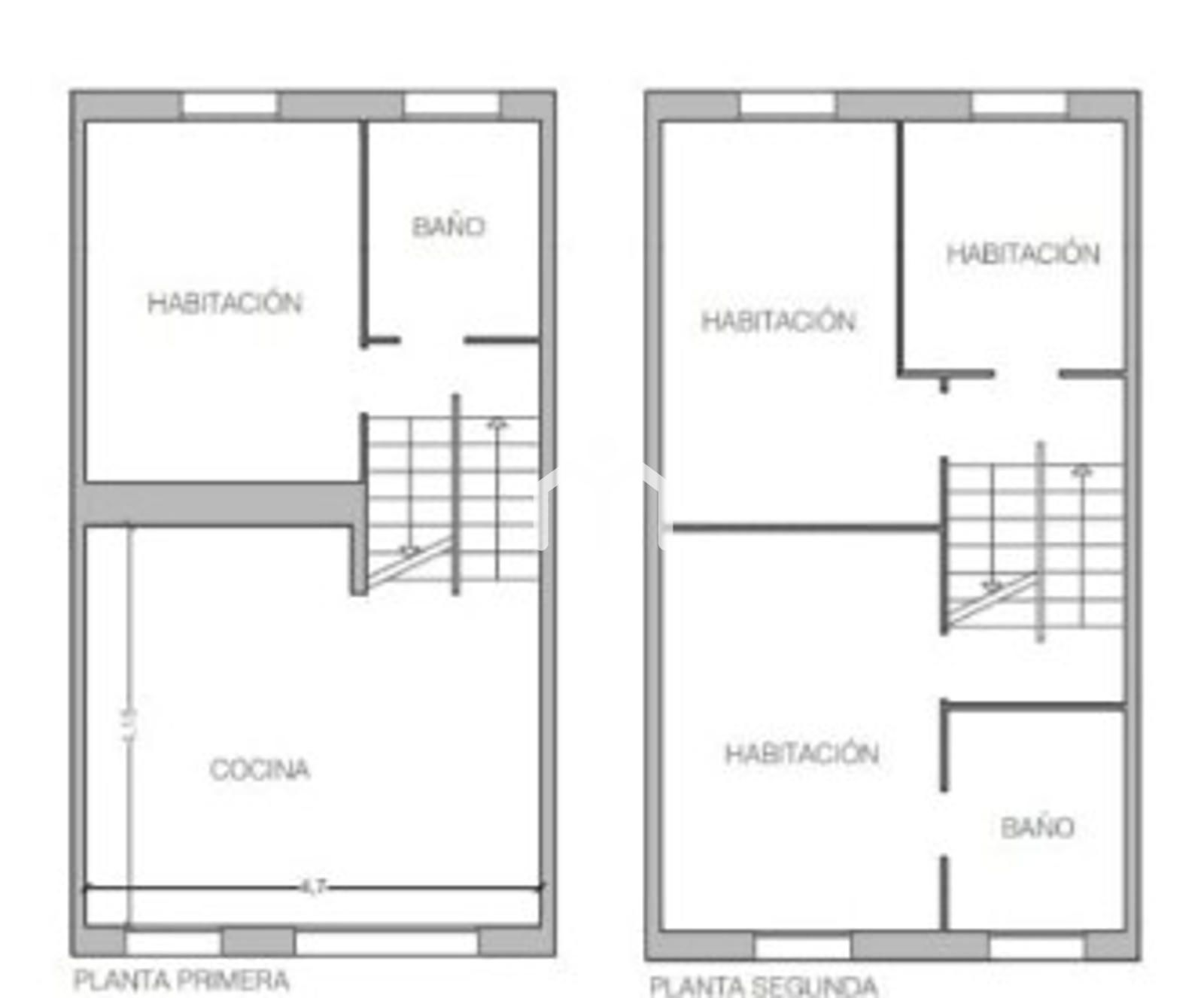
La casa se distribuye en 3 plantas, cuenta con 173 m² construidos y 160 m² útiles, combina diseño moderno, funcionalidad y calidez en un entorno tranquilo y familiar.

Cuenta con un amplio salón-comedor con chimenea y salida directa a una fantástica terraza de 35 m², ideal para relajarse, disfrutar en familia o celebrar reuniones al aire libre.

La cocina, totalmente nueva y equipada con electrodomésticos de alta gama, destaca por su luminosidad y gran capacidad de almacenaje.

Dispone de cuatro dormitorios exteriores y dos baños completos (uno con bañera y otro con plato de ducha), ambos renovados con acabados de calidad.

El garaje privado de 25 m² ofrece espacio para coche y moto, con posibilidad de aparcar 1 vehículo más en su rampa.. En esta misma planta se encuentra un gran altillo, lavandero, bodega y una amplia zona de almacenaje, despensa, etc.

Con respectos a los acabados, cuenta con aire acondicionado, ventanas de aluminio en blanco con doble acristalamiento y persianas automáticas, puertas lacadas en blanco, alarma interior, calefacción por radiadores, suelos de gres imitación parquet, escaleras de mármol, etc.

Una ubicación privilegiada: la casa se sitúa en una zona residencial tranquila, pero a la vez muy bien comunicada, con todo a mano: supermercados, farmacias, parques, ambulatorios, comercios, múltiples paradas de autobús, y muy cerca delas principales vías de carretera.

Una vivienda reformada con gusto, luminosa, cómoda y con una gran terraza privada que la convierte en un hogar único.

La bonita ciudad de Badalona, colinda con mar y montaña, la sierra de Marina atraviesa el norte y oeste del término municipal, donde destaca la colina de la Coscollada, de 466 metros de altitud. También hay destacar las rieras, abundantes en el municipio. Badalona disfruta de un clima mediterráneo subhúmedo, es decir, suave, con veranos húmedos y cálidos, además de un periodo más fresco, con un invierno moderadamente suave. El litoral de Badalona, bañado por el mar Mediterráneo, es de 5 kilómetros, con un bonito y nuevo puerto deportivo, y cuenta con nueve playas diferentes. El paseo marítimo de la ciudad se prolonga casi a lo largo de un kilómetro.

La vivienda que buscas te abrazará desde el momento que abras la puerta de MONMARESME, cuando lo hagas, no dudes…., esa es tu puerta, porque en MONMARESME no solo vendemos inmuebles, los convertimos en hogares, y cambiamos vidas. ¡!!

MONMARESME les ofrece tasaciones gratuitas, asesoramiento financiero sin compromiso. En el precio de esta vivienda no incluye impuestos, gastos notariales, registro y otros gastos vinculados en la compra. No obstante, nuestros HONORARIOS si están INCLUIDOS EN EL PRECIO.
Consúltenos !!


Características
Precio Venta 555.000 €
Año de construcción 1990
Construidos 173 m2
Útiles 160 m2
Precio/m² 3.208
Dormitorios 4
Baños 3
Cocina Amueblada
Calefacción Individual a gas
Trastero
Terraza
Estado Excelente
Tipo de suelo Gres Imitación Parquet
Aire acondicionado
Garaje
Calificación Energética (E) VER
Luz
Gas
Alarma interior

Visita Virtual

Escalas de eficiencia


-
-

Contáctanos

Si deseas más información sobre esta propiedad, por favor, rellena el formulario.

 Sí, he leído y/o acepto las Condiciones de uso y la Política de privacidad
Inmuebles similares:
 
555.000 €
Ref. 3404  173 m2  4  3

Casa adosada en La Morera - Badalona, reforma integral reciente, 4 habitaciones, 3 cuartos de baño, amplio comedor con salida a Terraza, cocina office y plaza de garaje

 
556.000 €
Ref. 3328  258 m2  4  3
Chalet de 4 habitaciones, garaje, amplio comedor, buhardilla, varias terrazas, trastero y 3 cuartos de baño