Casa independiente con 4 habitaciones, 2 cuartos de baños, gran terraza y jardin, garaje para 4 vehículos
Argentona - REF. 3420

181 m2

105 m2

4

2

1
venta: 433.000 €
Descripción
Casa independiente en la urbanización de Les Ginesteres (Argentona), ideal para quienes buscan tranquilidad, privacidad y amplitud sin renunciar a una buena conexión con Mataró, Barcelona y Granollers. Situada en una parcela de casi 1.000 m², la vivienda es esquinera, muy luminosa y rodeada de zona verde no edificable.

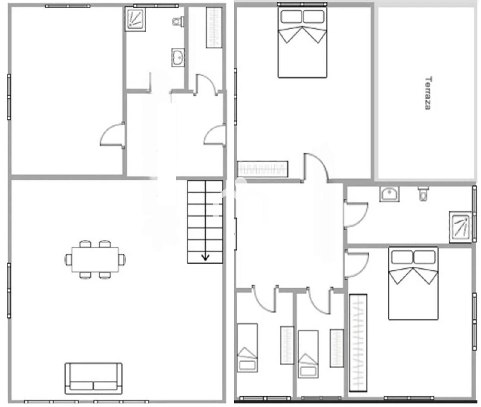
La casa principal se distribuye en dos plantas y cuenta con 105 m2 de terrazas y 380 m2 de jardín, 4 habitaciones, 2 cuartos de baños, gran terraza y jardin, garaje para 4 vehículos.
En la planta baja encontramos un recibidor, un salón-comedor con salida a una terraza acristalada con vistas despejadas, una amplia cocina office con chimenea y despensa, y un aseo de cortesía.
En la primera planta se ubican cuatro habitaciones (dos dobles, una con terraza) y un baño completo, además de una zona abuhardillada perfecta como almacén o sala polivalente.

El exterior ofrece un gran jardín en varios niveles, terrazas amplias y espacio suficiente para instalar piscina, huerto o zonas de ocio.
Desde el jardín se accede a un apartamento independiente de 75 m², con posibilidad de hacer más habitaciones, baños y otras estancias, ideal para invitados o uso profesional.

La vivienda dispone de calefacción de gasoil, cerramientos de aluminio, marquesinas de seguridad y zona de aparcamiento exterior para hasta 4 vehículos.

Una casa versátil, bien distribuida y llena de posibilidades, ubicada en un entorno natural y a solo 5 minutos de Argentona.

Argentona es un municipio de la comarca del Maresme, pero de la zona interior, aunque su término se alarga hasta casi la costa. El municipio de Argentona tiene unos lugares históricos que vale la pena descubrir. Entre ellos encontramos la Plaza Nueva, situada en el corazón de la población y que es el escenario principal de los actos de la fiesta mayor o de mercados y es utilizada como lugar de encuentro de pequeños, jóvenes y mayores.
Desde diferentes puntos del Maresme se pueden contemplar los restos del castillo de Burriac, ya que se encuentra situado en la cima de una sierra de unos 400 m². De hecho, este castillo pertenece al municipio de Cabrera de Mar, sin embargo, la gente de Canet de Mar, se lo siente como suyo. Incluso, lo utilizan como barómetro meteorológico con la frase que usan de "núvols a Burriac, pluja aviat". (Nubes en Burriac, lluvia pronta)
En el entorno de Argentona también encontramos la Font Picant. En sus inicios se utilizaba el agua como tratamiento curativo e, incluso, se instaló un balneario. Sin embargo, sufrió varios infortunios que la llevaron a su abandono. Hoy en día, se ha recuperado y es una zona de recreo como ya lo había sido.

La vivienda que buscas te abrazará desde el momento que abras la puerta de MONMARESME, cuando lo hagas, no dudes…., esa es tu puerta, porque en MONMARESME no solo vendemos inmuebles, los convertimos en hogares, y cambiamos vidas. ¡!!
MONMARESME les ofrece tasaciones gratuitas, asesoramiento financiero sin compromiso. En el precio de esta vivienda no incluye impuestos, gastos notariales, registro y otros gastos vinculados en la compra. No obstante, nuestros HONORARIOS si están INCLUIDOS EN EL PRECIO.
Consúltenos !!

Características
Precio Venta 433.000 €
Precio/m² 2.392
Año de construcción 1991
Construidos 181 m2
Útiles 166 m2
Dormitorios 4
Baños 2
Calefacción Gasoil
Trastero
Terraza
Estado Buena
Tipo de suelo Gres
Garaje
Calificación Energética (F) VER
Luz
Agua
Rejas en ventanas
Vídeos
Escalas de eficiencia


-
-

Contáctanos

Si deseas más información sobre esta propiedad, por favor, rellena el formulario.

 Sí, he leído y/o acepto las Condiciones de uso y la Política de privacidad
Inmuebles similares:
 
460.000 €
Ref. 3526  302 m2  5  3

Casa independiente, gran salón comedor, cocina office, 5 dormitorios, 3 cuartos de baño, gran terraza y jardín, buhardilla con 2 salas polivalentes, trastero y garaje para dos coches.