CASA ADOSADA EN BADALONA
Badalona (Montigalà) - REF. 3327

244 m2

20 m2

4

3

3
venta: 720.000 €
Descripción


Desde MONMARESME te presentamos esta EXCLUSIVA y fantástica casa adosada con vistas despejadas al Parque de Montigalà.

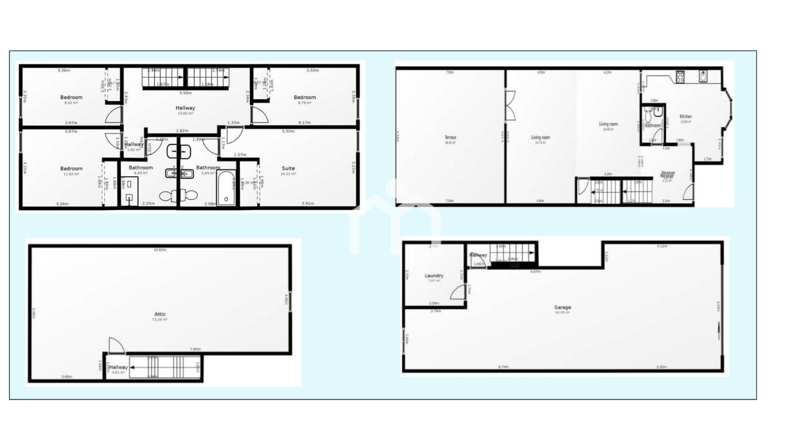
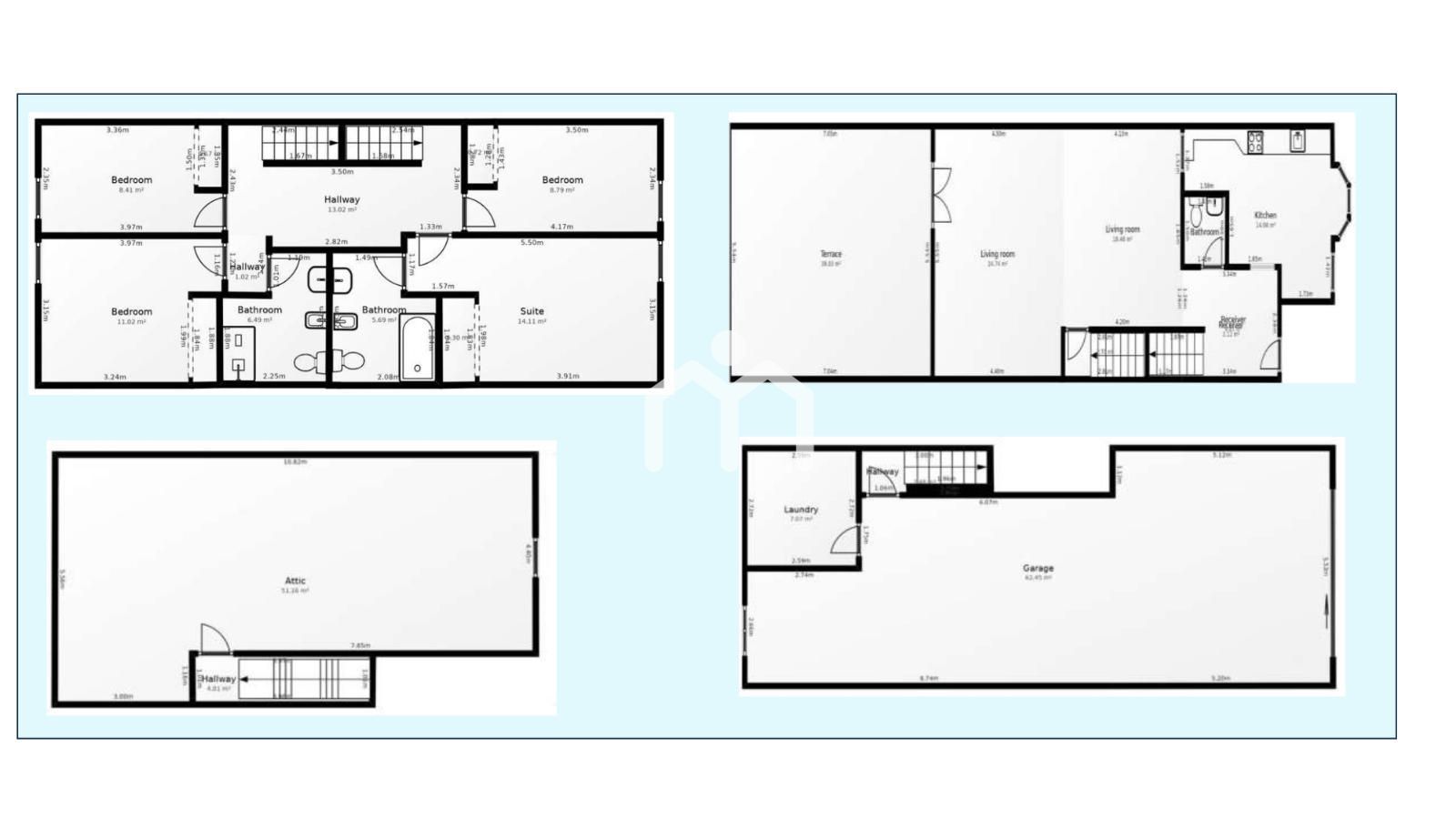
Construida en 1991 y renovada recientemente, cuenta con 244 m² distribuidos en tres cómodas plantas más un amplio sótano.

En la entrada nos recibe un agradable patio delantero, y en la parte trasera encontramos un jardín privado de unos 40 m², perfecto para disfrutar del aire libre y reuniones con familia o amigos.

La planta principal ofrece un espacioso salón-comedor muy luminoso, con acceso directo al jardín y una chimenea de diseño moderno que aporta calidez al ambiente. La cocina, práctica y reformada, dispone de una cómoda zona office junto a un gran ventanal con vistas al parque. También hay un aseo de cortesía en esta planta.

En la primera planta se ubica la zona de descanso, con cuatro habitaciones exteriores (dos dobles y dos individuales), una de ellas tipo suite, y dos baños completos reformados, uno con bañera y otro con ducha.

En la última planta se encuentra una buhardilla: siendo ésta una estancia diáfana de 50 m², revestida de madera, ideal como estudio, sala de juegos o zona de trabajo, con luz natural gracias a varias ventanas tipo claraboya.

En el sótano encontramos un gran garaje con capacidad para tres vehículos, zona de trastero y una sala independiente destinada a lavandería, equipada con calentador eléctrico, lavadora y secadora.

La vivienda dispone de climatización por bomba de calor en cada planta, con control de temperatura independiente.

Con respecto a los acabados, la casa cuenta con todas las comodidades: aire acondicionado, calefacción, suelos de parquet y gres, puertas lacadas en blanco y ventanas con doble acristalamiento, garantizando un excelente aislamiento térmico y acústico.

Una ubicación privilegiada: la casa se sitúa en una zona residencial tranquila, pero a la vez muy bien conectada. A menos de cinco minutos a pie se encuentran el Centro Comercial Montigalà,  y al resto de zona comercial con grandes supermercados y superficies como Ikea, Decathlon, etc. La vivienda está a solo 2,5 km está la playa de Badalona, y además cuenta con excelente acceso a la B-20 y múltiples líneas de autobús.

La bonita ciudad de Badalona, colinda con mar y montaña, la sierra de Marina atraviesa el norte y oeste del término municipal, donde destaca la colina de la Coscollada, de 466 metros de altitud. También hay destacar las rieras, abundantes en el municipio. Badalona disfruta de un clima mediterráneo subhúmedo, es decir, suave, con veranos húmedos y cálidos, además de un periodo más fresco, con un invierno moderadamente suave. El litoral de Badalona, bañado por el mar Mediterráneo, es de 5 kilómetros, con un bonito y nuevo puerto deportivo, y cuenta con nueve playas diferentes. El paseo marítimo de la ciudad se prolonga casi a lo largo de un kilómetro.

La vivienda que buscas te abrazará desde el momento que abras la puerta de MONMARESME, cuando lo hagas, no dudes…., esa es tu puerta, porque en MONMARESME no solo vendemos inmuebles, los convertimos en hogares, y cambiamos vidas. ¡!!

MONMARESME les ofrece tasaciones gratuitas, asesoramiento financiero sin compromiso. En el precio de esta vivienda no incluye impuestos, gastos notariales, registro y otros gastos vinculados en la compra. No obstante, nuestros HONORARIOS si están INCLUIDOS EN EL PRECIO.

Consúltenos !!


Características
Precio Venta 720.000 €
Año de construcción 1991
Construidos 244 m2
Útiles 220 m2
Precio/m² 2.951
Jardín 40 m2
Dormitorios 4
Baños 3
Cocina Amueblada
Calefacción Eléctrica
Trastero
Terraza
Estado Excelente
Tipo de suelo Parquet y Gres
Aire acondicionado
Garaje
Calificación Energética (F) VER
Luz
Agua

Visita Virtual

Escalas de eficiencia


-
-

Contáctanos

Si deseas más información sobre esta propiedad, por favor, rellena el formulario.

 Sí, he leído y/o acepto las Condiciones de uso y la Política de privacidad
Inmuebles similares:
 
770.000 €
Ref. 3276  280 m2  5  2
Casa a cuatro vientos, 5 habitaciones, 2 cuartos de baño, cocina office, buhardilla, jardín con piscina privada y garaje
 
599.900 €
Ref. 2486  317 m2  4  2
Casa independiente con 4 habitaciones, 2 buhardillas, jardín, placas solares, piscina privada y plaza de garaje para 4 coches